巴克禮公園
東區買屋 /
東區買房
-
店長推薦|東區|副都心重劃區|富立建設三房|平面車位
預約看屋
更多優質好屋: 37
※ 房屋照片僅反應使用現況,用途以實際合法文件為準。若法定用途與現況不同,可能違法並有相關風險,請購屋或承租前詳加確認,以保障權益。
- 總價:2088 萬 (含車位價)
- 參考單價:37.23 萬/坪
- 地址:
台南市
東區
崇賢三路
地圖
🏷️ 查看區域實價登錄
- 社區:富立和築/和築真邦
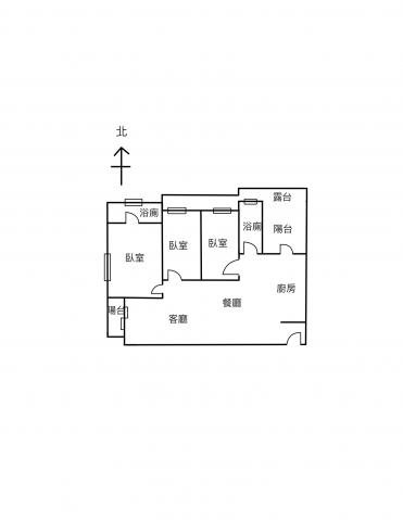
- 格局: 3房(室) 2廳 2衛
- 總坪數:56.08 坪 (包含車位面積)
- 主建物面積:29.55 坪
- 附屬建物面積:4.49 坪
- 共同使用:22.04 坪
- 土地面積:9.58 坪
- 樓別/樓高: 3樓 / 15樓
- 屋齡:9 年
- 法定用途:住家用
- 形式/類型:住宅/ 電梯大樓
- 車位:坡道平面式
- 電梯:有
房市行情分析
本圖表依實價登錄資料整理,提供市場行情參考;實際價格仍會因屋況、條件不同而有所差異,建議洽詢承辦營業員進一步了解。
詳細資訊
特色說明
圖片介紹











地圖 (點擊顯示地圖)
專家亮點
本內容由 AI 輔助分析整理,僅供參考,實際情況仍建議依此房仲說明與個人需求判斷。
此物件值得購買,特別適合追求空間大、重視長期持有成本且對東區發展有信心的家庭買家。
主要理由如下: 第一,性價比極高,56 坪含車位總價約 2088 萬,單價在東區副都心屬合理範圍,且每月管理費僅 2000 多元,對於大坪數住宅而言,長期負擔極低,這是極少數的亮點。 第二,地段與配套完善,位於副都心核心,交通便利且鄰近知名地標,適合自住生活,亦有增值潛力。 第三,居住機能好,9 年屋齡搭配飯店式管理,居住品質有保證。
購買建議: 建議親自實地勘查,特別是確認 3 樓對省道的噪音影響及採光情況。若能接受低樓層特性並確認隔音效果,這是一筆兼具居住品質與財務效益的優質資產。
問與答
東區大樓別墅
東區大樓別墅
郭奕民(仲介,收取服務費)
暱稱:郭奕民 房研社-民哥
專業品質:
服務態度:
房仲電話:0978-133352
訂閱:1 (加入)台南崇明銘星 加盟店
經紀業名稱: 銘星不動產仲介經紀有限公司
證號: (106)登字第321114號
東區大樓別墅 郭奕民 0978133352
您好,我是您可信賴的房地產專業經紀人,擁有誠實、負責、細心和專業的特質。自踏入這個行業以來,我榮獲多項獎項,包括107年至113年連續獲得的400萬及500萬經紀人獎項,以及單月百萬經紀人的殊榮,這些成績不僅展現了我在業界的專業能力,也反映了客戶對我的信任。
我專注於大台南區域,尤其是東區、永康區及大樓透天型產品,並且精通市場行情的快速提供及專業稅費規劃。不論是不動產的買賣交易,或是網路行銷曝光,我都能為客戶提供全方位的服務。
如果您在尋找專業的房產顧問,歡迎隨時聯繫我!讓我們一起實現您的房地產夢想!
店長推薦|近成大、平實公園【京城鳳凰】優質兩房
台南市 永康區
專任│近新光三越、建興國中│一層兩戶│四房有車位
台南市 中西區
東區|近虎尾寮|復興國中小|大三房|平面車位
台南市 東 區
東區大樓別墅 (專)永康近台南總圖中華路商圈三房平車美華廈
台南市 永康區
店長推薦|預售屋西門大院|B7格局兩房兩衛|平面車位
台南市 北 區
店長推薦|大地坪34坪|輕屋齡7年|朝南邊間雙車墅
台南市 永康區
店長推薦|全新未住一層兩戶|三房可停雙車
台南市 永康區
店長推薦│大林國宅│三房│平面車位
台南市 南 區
專任|成大、近火車站|後甲國中|四房平面車位
台南市 東 區
店長推薦|西門大院A棟|高樓四房|充電樁雙平面車位
台南市 北 區
預約看屋
發問
收藏房屋土地
分享











我家粉絲團